成都 德阳 南充

您好,欢迎来到业之家装饰!

当前位置: 首页>装修案例
案例风格
田园
案例户型
公寓
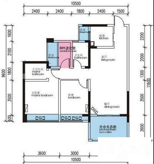
案例面积
78㎡
案例造价
6万
产品套系
清单装修
项目地址
XXXX
设计单位
业之家装饰
设 计 师 
陈育东
售后专线
180-8080-5508
设计师在此次地中海风格的设计中,运用了比较典型的地中海的蓝与白的搭配特征,来诠释整个空间。让人联想到白色的村庄与沙滩、碧海蓝天连成一片,甚至门套、沙发、椅
本案例设计师简介

姓名:陈育东

级别:首席设计师

擅长风格:现代,中式,北欧,混搭

预约设计
相关案例
XXXX140㎡现代风格装修
XXXX156㎡其他风格装修
XXXX89㎡北欧风格装修
XXXX55㎡田园风格装修